Leave a Message

Thank you for your message. We will be in touch with you shortly.

Explore Our Properties

Property Description

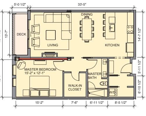
Hobson's Landing at 383 Commercial Street redefined luxury living on Portland's peninsula. Phase 2, which will be comprised of 64 units, is now underway. A variety of floor plans consisting of 1,2- and 3 bedroom units are available, with prices that range from $425,000 to $2,950,000. All units feature hardwood throughout, 9 ft. ceilings, gas fireplace, radiant heat in master bathroom and private decks. Amenities include lobby with concierge, clubroom with a fireplace, deck, and full kitchen, fitness room, dog wash, reservable guest suite, shared Tesla and bikes, and spacious courtyards. Garage parking is available at $35000 or $43,500 with an electric vehicle charging station. Occupancy Fall 2023. Take this opportunity to make Hobsons Landing your new home in an iconic waterfront city!

Overview

Property Status
Sold
MLS ID
1528830
Property Type
Condo
Year Built
2023

Features & Amenities

Total Area
1,043 Sq.Ft.
Architecture Styles
Contemporary
View Description
Scenic
Garage Spaces
1.0
Water Source
Public
Roof
Flat, Membrane
Lot Features
Sidewalks, Landscaped, Intown, Near Shopping, Near Turnpike/Interstate
Parking
1 - 4 Spaces, Paved, Common, On Site
Heat Type
Radiant, Multi-Zones, Heat Pump, Hot Air
Air Conditioning
Central Air
Appliances
Washer, Refrigerator, Gas Range, Dryer, Disposal, Dishwasher
Other Interior Features
Walk-in Closets, Elevator Passenger, 1st Floor Primary Bedroom w/Bath, One-Floor Living, Storage
Sewer
Public Sewer
Substructure
Concrete Perimeter
School District
Portland Public Schools
Sales Price
$800,000
Real Estate Tax
$10,999/yr
HOA
$355/mo
Zoning
Mixed Use

Downloads

387 Commercial Street, 532

Schedule a Tour

We would love to help you see this beautiful home! As a full-service brokerage, we can help you tour. Please submit an offer, and answer questions about the buying process.

Thank you

for your interest in 387 Commercial Street, 532, Portland, ME 04101

387 Commercial Street, 532
Navigate

I'm Interested In

387 Commercial Street, 532

or
  • CallColin McKeith

    License #020159

    (207) 393-7331
  • Active Listings

    Featured Properties

    • 323 Portland Road For Sale

      $3,250,000

      323 Portland Road

      323 Portland Road, Bridgton, ME 04009

      Listing Courtesy of Oberg Insurance & Real Estate Agency, Inc.

    • 45 E Shore Drive For Sale

      $1,999,000

      45 E Shore Drive

      45 E Shore Drive, Harrison, ME 04040

      Listing Courtesy of Oberg Insurance & Real Estate Agency, Inc.

      • 5 Beds
      • 3 Baths
      • 3,072 Sq.Ft.
    • 42 Knowles Point Road For Sale

      $1,895,000

      42 Knowles Point Road

      42 Knowles Point Road, Bridgton, ME 04009

      Listing Courtesy of Oberg Insurance & Real Estate Agency, Inc.

      • 4 Beds
      • 4 Baths
      • 3,636 Sq.Ft.
    • 11 Camp Loop Lane For Sale

      $1,190,000

      11 Camp Loop Lane

      11 Camp Loop Lane, Bridgton, ME 04009

      Listing Courtesy of Oberg Insurance & Real Estate Agency, Inc.

      • 4 Beds
      • 3 Baths
      • 1,632 Sq.Ft.
    • 52 N Bridgton Road For Sale

      $849,000

      52 N Bridgton Road

      52 N Bridgton Road, Waterford, ME 04088

      Listing Courtesy of Oberg Insurance & Real Estate Agency, Inc.

      • 3 Beds
      • 4 Baths
      • 3,000 Sq.Ft.
    • 56 Main Street For Sale

      $699,000

      56 Main Street

      56 Main Street, Harrison, ME 04040

      Listing Courtesy of Oberg Insurance & Real Estate Agency, Inc.

      • 4,485 Sq.Ft.
    • Lot 7 Camp Loop Lane For Sale

      $599,000

      Lot 7 Camp Loop Lane

      Lot 7 Camp Loop Lane, Bridgton, ME 04009

      Listing Courtesy of Oberg Insurance & Real Estate Agency, Inc.

    • 86 Beaver Creek Farm Road For Sale

      $580,000

      86 Beaver Creek Farm Road

      86 Beaver Creek Farm Road, Bridgton, ME 04009

      Listing Courtesy of Oberg Insurance & Real Estate Agency, Inc.

      • 3 Beds
      • 2 Baths
      • 1,248 Sq.Ft.
    • 154 Allen Road For Sale

      $525,000

      154 Allen Road

      154 Allen Road, Denmark, ME 04022

      Listing Courtesy of Oberg Insurance & Real Estate Agency, Inc.

      • 3 Beds
      • 2 Baths
      • 2,112 Sq.Ft.
    • 133 Hio Ridge Road For Sale

      $499,000

      133 Hio Ridge Road

      133 Hio Ridge Road, Bridgton, ME 04009

      Listing Courtesy of Oberg Insurance & Real Estate Agency, Inc.

      • 3 Beds
      • 1 Bath
      • 2,361 Sq.Ft.
    • 28 Colony Lane For Sale

      $410,000

      28 Colony Lane

      28 Colony Lane, Bridgton, ME 04009

      Listing Courtesy of Oberg Insurance & Real Estate Agency, Inc.

      • 3 Beds
      • 2 Baths
      • 1,424 Sq.Ft.
    • Lot 1 Camp Woodlands Road For Sale

      $399,000

      Lot 1 Camp Woodlands Road

      Lot 1 Camp Woodlands Road, Bridgton, ME 04009

      Listing Courtesy of Oberg Insurance & Real Estate Agency, Inc.

    • Lot 2 Wildwood Road Pending

      $395,000

      Lot 2 Wildwood Road

      175 Wildwood Road, Bridgton, ME 04009

      Listing Courtesy of Oberg Insurance & Real Estate Agency, Inc.

      • 3 Beds
      • 2 Baths
      • 1,148 Sq.Ft.
    • Lot 8 Isaac Stevens Road For Sale

      $395,000

      Lot 8 Isaac Stevens Road

      Lot 8 Isaac Stevens Road, Bridgton, ME 04009

      Listing Courtesy of Oberg Insurance & Real Estate Agency, Inc.

      • 3 Beds
      • 2 Baths
      • 1,148 Sq.Ft.
    • 177 Wildwood Road For Sale

      $389,000

      177 Wildwood Road

      177 Wildwood Road, Bridgton, ME 04009

      Listing Courtesy of Oberg Insurance & Real Estate Agency, Inc.

      • 3 Beds
      • 2 Baths
      • 1,144 Sq.Ft.
    • 27 Stonehedge Drive Active Under Contract

      $360,000

      27 Stonehedge Drive

      27 Stonehedge Drive, Bridgton, ME 04009

      Listing Courtesy of Oberg Insurance & Real Estate Agency, Inc.

      • 3 Beds
      • 2 Baths
      • 1,420 Sq.Ft.
    • 513 S High Street For Sale

      $359,000

      513 S High Street

      513 S High Street, Bridgton, ME 04009

      Listing Courtesy of Oberg Insurance & Real Estate Agency, Inc.

      • 3 Beds
      • 1 Bath
      • 1,208 Sq.Ft.
    • 11 Harrison Road For Sale

      $339,000

      11 Harrison Road

      11 Harrison Road, Bridgton, ME 04009

      Listing Courtesy of Oberg Insurance & Real Estate Agency, Inc.

      • 3 Beds
      • 1 Bath
      • 1,368 Sq.Ft.
    • 14 Ciliberto Way Active Under Contract

      $299,900

      14 Ciliberto Way

      14 Ciliberto Way, Bridgton, ME 04009

      Listing Courtesy of Oberg Insurance & Real Estate Agency, Inc.

      • 3 Beds
      • 2 Baths
      • 2,169 Sq.Ft.
    • 29 Farnsworth Road For Sale

      $289,900

      29 Farnsworth Road

      29 Farnsworth Road, Fryeburg, ME 04037

      Listing Courtesy of Oberg Insurance & Real Estate Agency, Inc.

      • 3 Beds
      • 2 Baths
      • 1,192 Sq.Ft.
    • 62 Middle Ridge Road A For Sale

      $289,900

      62 Middle Ridge Road A

      62 Middle Ridge Road A, Bridgton, ME 04009

      Listing Courtesy of Oberg Insurance & Real Estate Agency, Inc.

      • 2 Beds
      • 2 Baths
      • 1,020 Sq.Ft.
    • 62 Middle Ridge Road B For Sale

      $289,900

      62 Middle Ridge Road B

      62 Middle Ridge Road B, Bridgton, ME 04009

      Listing Courtesy of Oberg Insurance & Real Estate Agency, Inc.

      • 2 Beds
      • 2 Baths
      • 1,020 Sq.Ft.
    • 12 Village Heights Drive For Sale

      $249,000

      12 Village Heights Drive

      12 Village Heights, Harrison, ME 04040

      Listing Courtesy of Oberg Insurance & Real Estate Agency, Inc.

    • 7 Main Street For Sale

      $235,000

      7 Main Street

      7 Main Street, Bridgton, ME 04009

      Listing Courtesy of Oberg Insurance & Real Estate Agency, Inc.

      • 1,248 Sq.Ft.
    • 0 N High Street For Sale

      $210,000

      0 N High Street

      0 N High Street, Bridgton, ME 04009

      Listing Courtesy of Oberg Insurance & Real Estate Agency, Inc.

    • 18 Village Heights Drive For Sale

      $199,000

      18 Village Heights Drive

      18 Village Heights, Harrison, ME 04040

      Listing Courtesy of Oberg Insurance & Real Estate Agency, Inc.

    • Lot 9 Bear Pond Road For Sale

      $199,000

      Lot 9 Bear Pond Road

      Lot 9 Bear Pond Road, Waterford, ME 04088

      Listing Courtesy of Oberg Insurance & Real Estate Agency, Inc.

    • Lot 4 Brookhaven Road For Sale

      $130,000

      Lot 4 Brookhaven Road

      Lot 4 Brookhaven Lane, Harrison, ME 04040

      Listing Courtesy of Oberg Insurance & Real Estate Agency, Inc.

    • Lot 15-3B Sweden Road For Sale

      $85,000

      Lot 15-3B Sweden Road

      Lot 15-3B Sweden Road, Bridgton, ME 04009

      Listing Courtesy of Oberg Insurance & Real Estate Agency, Inc.

    View All Properties

    Follow Us On Instagram